EFM YACHTS
Viareggio, 55049 Viareggio (Lucca)Tél.: +39-3665906499 Cell: +39-338-4515758;
Cell: EFM YACHTS MIAMI CORP. 1680 Michigan Ave STE 700 - Miami Beach FL 33139 Fax +1 786-228-3880 Cell: +39 366 5906499 Skype: giulioefm
Sunseeker 82 yacht (2007)
cód. IDO: 382298 - Ficha: 00588969
| Astillero/Modelo | Sunseeker 82 yacht | ||
| Categoría | Barco usado Motor | ||
| Tipología | Yate a motor | ||
| Nr. construcción | 000 | ||
| Eslora | 25.00 mts | ||
| Ancho | 6.16 mts | ||
| Año de matr. | 2008 | ||
| Año de construcción. | 2007 | ||
| Max Velocidad | 31.0 nudos | ||
| Velocidad Crucero | 24.0 nudos | ||
| Precio |
1 480 000 Euro | ||
| PREZZO DI VENDITA + IVA SE DOVUTA - COMMISSIONI AGENZIA NON INCLUSE DA CONCORDARE - TRATTATIVA RISERVATA - | |||
|
Possibilidad de Permutación
|
|||
Combustibles y motores
| Nº motores | 2 |
| Potencia | 1675 HP |
| Combustible | Diesel |
| Marca | CATERPILLAR |
| Modelo | C 32 |
| Transmisión | Línea d'eje |
| Horas movimiento | 1400 |
| No tanques | 3 |
| Capacidad | 6500 litros (1431.30 galónes) |
Materiales
| Casco | GRP VTR |
| Cubierta | VTR TEAK |
| Casa de Cubierta | GRO VTR |
Hidráulicos
| Tanques | 1 |
| Capacidad | 1500 litros (330.30 galónes) |
| Material | ALUMINIUM |
| Desalinizador | Sí |
| Caldera | Sí 220 + SCAMBIATORE |
| Cocheporras | Sí |
Eléctricos
| Tensión | 12/24/220 |
| Carga baterías | Sí |
| Invertitor | Sí |
| Nr. Baterías | 16 |
| Capacidad | 2200 |
| Gen. 220 | Sí 2 KOHLER |
| Potencia | 46.0 Kw |
Breve descripción
| BEAUTIFUL SUNSEEKER 82 YACHT - 4 CABIN VERSION INCLUDING A SPACIOUS EN SUITE MASTER - FLY HARD TOP - FULL TEAK - ENGINES CAT C32 - |
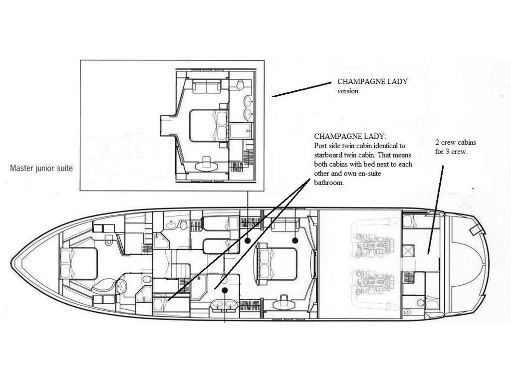
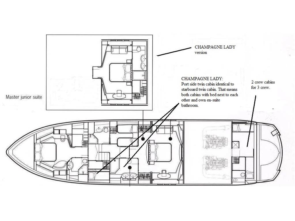
Notas internasAccommodation Number of cabins: 4 Number of bathrooms: 4 Master suite and VIP cabin with en-suite bathroom and the 2 twin cabins with en-suite bathrooms. 2 crew cabins aft with one single and one double bed and one bathroom. The accommodation on this 2008 Sunseeker 82 Yacht offers 8 berths in 4 cabins, including a spacious en suite master, good sized en suite VIP and 2 twin en suite cabins. Notas de la instrumentación• American style fridge freezer• Ceramic hob Microwave/oven • Dishwasher • Flybridge wetbar with sink, icemaker, coolchest & Gaganeau lava coal electric BBQ grill • Aft cockpit wetbar with cool chest & rubbish bin • U-line WC15 wine cooler located in bar island in galley • 2 x Kohler generators 23kw • Glendinning Cablemaster - 2 x power feed & recovery of shorepower 50amp 220v AC cable • Isolation transformer • Seamless transfer • AC shorepower/battery charger • Remote controlled spotlight at bow • Air conditioning • HRO Seafari SFM 1160-2 (183 lph) water maker with fresh water flushing • Bow & stern thrusters • Hydraulic lifting platform • Electric anchor winch with foredeck & flybridge controls • Stern winches • Teak cockpit, flybridge, side decks, bathing platform & step • Canvas covers for all flybridge seating, bow cushions/seats & flybridge table • Deck wash with outlets forward, aft & to flybridge • 2 brick safes with digital locks fitted in master & VIP staterooms • General Ecology Seagull IV X-6 double system water purifier for cold water supply • Hot & cold swimming shower at stern • Hard top over fly bridge • Satellite Fleet 33 in G8 dome with handset, fax & data point • VHF with DSC triple station • Captains cupboard housing PC, printer, fax & mobile VHFs • Radar/chartplotter with GPS Simrad RS87 • Electronic speed & depth displays Autopilot • Power assisted steering • Satellite Navision G8 TV system with 5 decoders • 42" Sony LCD TV in master stateroom • 32" Sony LCD TV in VIP stateroom • Sony DAV-D150 DVD/CD/VCR 5:1 Cinema surround sound system in VIP stateroom • Hi-fi DVD/CD/radio surround sound system to saloon & master stateroom • DVD/CD players in guest cabins • Sony central PC distribution system Notas de armamentoOptions• Fixed hard top with opening section • Air conditioning, compressors located in engine room • Hydraulic lifting platform • Side opening helm access door • Side opening galley access door • Flybridge wetbar with sink, ice maker, cool chest and griddle • Flatscreen televisions in all cabins • Bose Lifestyle hi-fi surround-sound system • DVD/CD player in guest cabins • Aft cockpit wetbar with rubbish bin and cool chest • Electric refrigerator, freezer and ice maker • Ceramic hob, microwave/oven and dishwasher • Electronic depth and speed displays • Radar/Chart plotter with GPS • Autopilot • VHF handset (dual station) • Hydraulic bow thruster • Hydraulic stern thruster • Fresh-water marina connection • Teak bathing platform and steps • Teak side decks • Teak cockpit floor • Teak flybridge floor |
Datos considerados correctos, pero no contractuales. No se trata, bajo ninguna circunstancia, de un documento contractual.
Búsquedas rápidas

























